Authentieke landwoning te renoveren in Benissa – Zuidgericht met uitzicht op de bergen
Deze charmante landelijke woning is gelegen in het rustige buitengebied van Benissa en biedt een weids uitzicht op de bergen, een volledige zuidoriëntatie en uitstekende privacy. Gelegen op een royaal rustiek perceel van 6.800 m², heeft de finca een bebouwde oppervlakte van ongeveer 220 m² en is ideaal voor een renovatie- of complete transformatieproject.
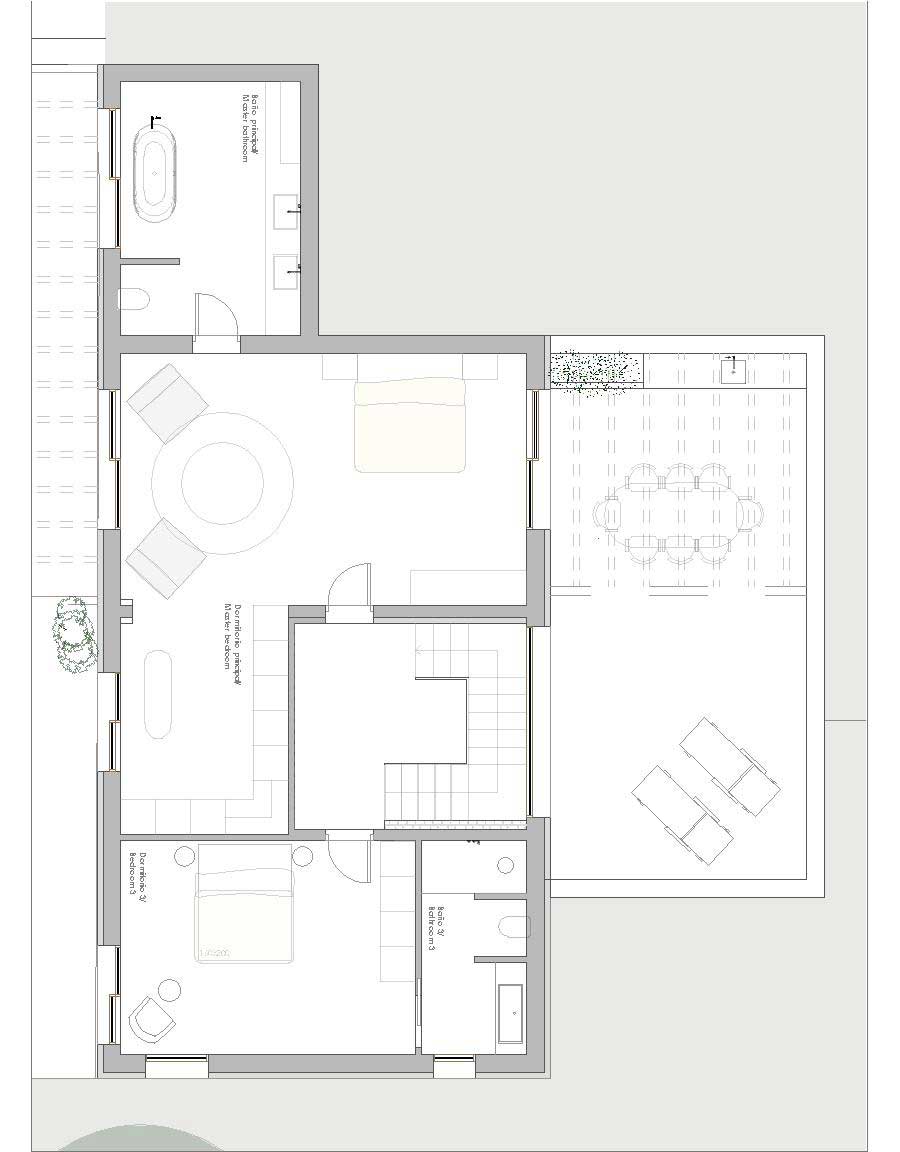
Er is reeds een ontwerpconcept beschikbaar om de woning om te vormen tot een prachtige Mediterrane woning met 3 slaapkamers en 3 badkamers, waarin natuursteen, warme materialen en hedendaags comfort worden gecombineerd. De voorgestelde indeling maakt optimaal gebruik van het omliggende landschap en het natuurlijke licht dankzij de zuidoriëntatie.
Eén van de blikvangers van de finca is de centrale binnenpatio, een perfecte ruimte om een rustige loungehoek, een buiteneetruimte of zelfs een zomerkeuken te creëren — een ideale verlenging van de mediterrane levensstijl.
Daarnaast biedt de woning de mogelijkheid om een ingegraven zwembad te bouwen, waarmee een privé buitenoase ontstaat met panoramisch bergzicht en volop zon gedurende het hele jaar.
Momenteel is er geen aansluiting op water of elektriciteit, maar de locatie is perfect voor het installeren van een zonne-energiesysteem en het creëren van een autonome watervoorziening via een waterput of opslagtank. Dit maakt de finca een uitstekende kans voor wie op zoek is naar off-grid, duurzaam wonen op het platteland.
Gelegen op korte rijafstand van het centrum van Benissa en de kustlijn van de Costa Blanca, is deze woning een uitzonderlijke kans om uw eigen landelijke toevluchtsoord te creëren in een rustige en natuurlijke omgeving.
Contact Opnemen
T: +34 966181040
E:
Kenmerken
Woningtype: Traditionele landelijke finca in het buitengebied van Benissa
Staat van de woning: Te renoveren; projectidee beschikbaar voor een mediterraan huis met 3 slaapkamers en 3 badkamers
Bebouwd oppervlak: Ca. 220 m²
Perceelgrootte: 6.800 m² rustiek land
Type terrein: Grotendeels vlak/lichte helling met vrij bergzicht en volledige zuidoriëntatie
Watervoorziening: Geen aansluiting op leidingwater; mogelijkheid voor privéwatervoorziening (put of waterdepot)
Elektriciteit: Geen aansluiting op het net; ideaal voor installatie van een zonnestroomsysteem
Leidingwater: Niet aangesloten
Toegankelijkheid: Goede bereikbaarheid; laatste deel van de weg is onverhard
Oriëntatie: Zuidligging met uitstekende zoninval het hele jaar
Uitzicht: Panoramisch bergzicht
Afstand tot het dorp: Korte rit naar Benissa en alle voorzieningen
Bijzondere kenmerken: Centrale binnenpatio; mogelijkheid voor aanleg van een ingebouwd zwembad
Geschikt voor: Renovatieproject, landelijk retreat, off-grid mediterraan wonen
Prijs: 149.000€




















